Two-storey home with a lot of renovations: 2nd floor with 3 bedrooms, family room, a mezzanine office. 1st floor with living room , beautiful renovated kitchen. Finished renovated basement with a large family room, two offices, a bathroom. Quiet area next to Dix30, a few steps from Aquatic Complex, parks, schools, public transport and highways. Two-storey home with a lot of renovations: 2nd floor with 3 bedrooms, family room, a mezzanine office. 1st floor with living room , beautiful renovated kitchen. Finished renovated basement with a large family room, two offices, a bathroom. Quiet area next to Dix30, a few steps from Aquatic Complex, parks, schools, public transport and highways.
MLS#: 15375912
Property type: Two or more storey
6
3
1
1
About this property
Property
| Category | Residential |
| Building Type | Detached |
| Year of Construction | 1977 |
| Building Size | 40x26 F |
| Lot Area Dimensions | 60x100 F |
| Lot Surface Area | 6000 SF |
Details
| Driveway | Asphalt |
| Heating system | Air circulation |
| Heating system | Electric baseboard units |
| Water supply | Municipality |
| Heating energy | Bi-energy |
| Heating energy | Electricity |
| Heating energy | Natural gas |
| Foundation | Poured concrete |
| Garage | Heated |
| Garage | Fitted |
| Proximity | Highway |
| Proximity | Cegep |
| Proximity | Daycare centre |
| Proximity | Golf |
| Proximity | Hospital |
| Proximity | Bicycle path |
| Proximity | Elementary school |
| Proximity | Réseau Express Métropolitain (REM) |
| Proximity | High school |
| Parking | Outdoor |
| Parking | Garage |
| Sewage system | Municipal sewer |
| Zoning | Residential |
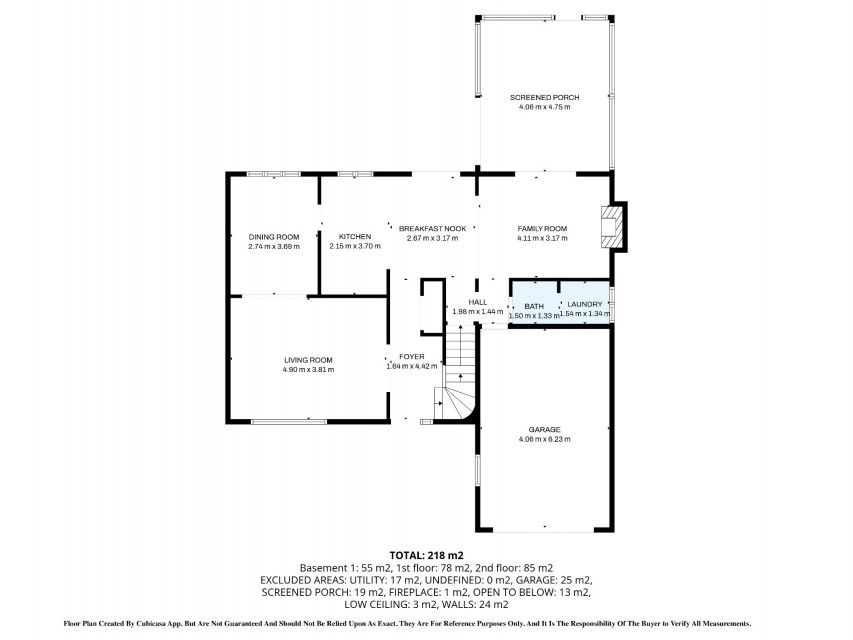
Rooms Description
Rooms: 18
Bedrooms: 6
Bathrooms + Powder Rooms: 3 + 1
| Room | Dimensions | Floor | Flooring | Info |
|---|---|---|---|---|
| Hallway | 16.5x4.3 P | 1st level/Ground floor | Ceramic tiles | |
| Living room | 16x12.6 P | 1st level/Ground floor | Wood | |
| Dining room | 12x9 P | 1st level/Ground floor | Wood | |
| Kitchen | 10x8.9 P | 1st level/Ground floor | Ceramic tiles | |
| Dinette | 15.11x12 P | 1st level/Ground floor | Ceramic tiles | |
| Family room | 13.5x10.3 P | 1st level/Ground floor | Wood | |
| Washroom | 10x4.7 P | 1st level/Ground floor | Ceramic tiles | |
| Primary bedroom | 12.4x12 P | 2nd floor | Wood | |
| Bathroom | 7.10x4.11 P | 2nd floor | Ceramic tiles | |
| Bedroom | 14x11.6 P | 2nd floor | Wood | |
| Bedroom | 10.8x10.5 P | 2nd floor | Wood | |
| Bathroom | 7.11x5.6 P | 2nd floor | Ceramic tiles | |
| Bedroom | 13.4x13.1 P | 2nd floor | Wood | |
| Mezzanine | 12x9.6 P | 2nd floor | Wood | |
| Family room | 23.8x14.2 P | Basement | Floating floor | |
| Bathroom | 6.9x5 P | Basement | Ceramic tiles | |
| Home office | 10x6.10 P | Basement | Floating floor | |
| Home office | 8.2x6.10 P | Basement | Floating floor |
Inclusions
Dishwasher, electrical fixtures, hood, garage door opener
Exclusions
Hot water tank (rented from HydroSolutions), the charging station
Commercial Property
Not available for this listing.
Units
Not available for this listing.
Revenue Opportunity
Not available for this listing.
Renovations
Not available for this listing.
Rooms(s) and Additional Spaces - Intergenerational
Not available for this listing.
Assessment, Property Taxes and Expenditures
| Expenditure/Type | Amount | Frequency | Year |
|---|---|---|---|
| Building Appraisal | $ 422,400.00 | 2025 | |
| Lot Appraisal | $ 278,700.00 | 2025 | |
| Total Appraisal | $ 701,100.00 | 2025 | |
| Municipal Taxes | $ 3,093.00 | Yearly | 2026 |
| School taxes | $ 424.00 | Yearly | 2025 |






