Superbe bungalow entièrement rénové, situé au coeur de Vaudreuil-Dorion et offert pour la première fois par le propriétaire d'origine. Cette propriété clé en main propose 4 chambres, 2 salles de bain complètes, un sous-sol aménagé et un grand garage avec accès direct. Cour clôturée avec terrasse et piscine chauffée. À proximité de l'Autoroute 40, des écoles, des parcs et de tous les services. Une occasion rare à saisir. Située dans un croissant tranquille et familial de Vaudreuil-Dorion, cette propriété a été soigneusement entretenue et rénovée au fil des ans. Principales améliorations : * 2014 : Fenêtres et portes remplacées * 2007 : Ajout d'un grand garage détaché chauffé * 2018 : Salle de bain du sous-sol entièrement rénovée * 2020 : Salle de bain du rez-de-chaussée entièrement rénovée * 2016 : Cuisine rénovée avec beaucoup de rangement et comptoirs en granit * 2020 : Nouvelle piscine hors-terre chauffée avec thermopompe électrique * 2022 : Nouvelle thermopompe murale installée * 2015 : Toiture remplacée * 2025 : Planchers en parquet sablés et vernis, peinture complète, nouveaux luminaires et nouvelles portes intérieures La cour arrière offre deux patios et deux gazebos, parfaits pour profiter pleinement de l'été. Idéalement située près des parcs, du transport en commun, des commerces, des services et des écoles, avec un accès rapide aux autoroutes pour faciliter les déplacements.
MLS#: 16305270
Type de propriété: Maison de plain-pied
4
2
0
1
Description de la propriété
Propriété
| Type de propriété | Résidentiel |
| Type de bâtiment | Détaché (Isolé) |
| Date de construction | 1984 |
| Dimensions du bâtiment | 12.86x8.52 M |
| Dimensions du terrain | 39.62x37.23 M |
| Superficie du terrain | 923 MC |
Détails
| Allée | Asphalte |
| Mode de chauffage | Plinthes électriques |
| Approvisionnement en eau | Municipalité |
| Énergie pour le chauffage | Électricité |
| Équipement disponible | Thermopompe murale |
| Fenêtres | PVC |
| Fondation | Béton coulé |
| Foyers-poêles | Foyer au bois |
| Garage | Attaché |
| Garage | Chauffé |
| Garage | Simple largeur |
| Piscine | Chauffée |
| Piscine | Hors-terre |
| Proximité | Autoroute/Voie rapide |
| Proximité | Garderie/CPE |
| Proximité | Golf |
| Proximité | Piste cyclable |
| Proximité | École primaire |
| Proximité | École secondaire |
| Proximité | Ski de fond |
| Proximité | Transport en commun |
| Revêtements | Aluminium |
| Revêtements | Brique |
| Revêtements | Vinyle |
| Salle de bains/salle d'eau | Douche indépendante |
| Sous-sol | 6 pieds et plus |
| Sous-sol | Totalement aménagé |
| Stationnement | Extérieur |
| Stationnement | Au garage |
| Système d'égouts | Municipal |
| Aménagement du terrain | Clôturé |
| Aménagement du terrain | Paysager |
| Type de fenêtre | Coulissante |
| Type de fenêtre | Manivelle |
| Toiture | Bardeaux d'asphalte |
| Topographie | Plat |
| Zonage | Résidentiel |
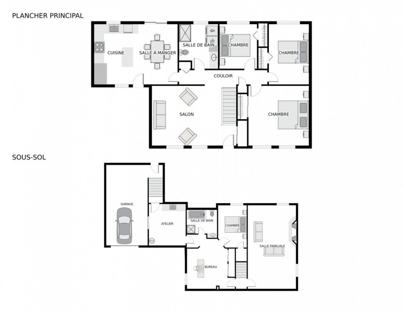
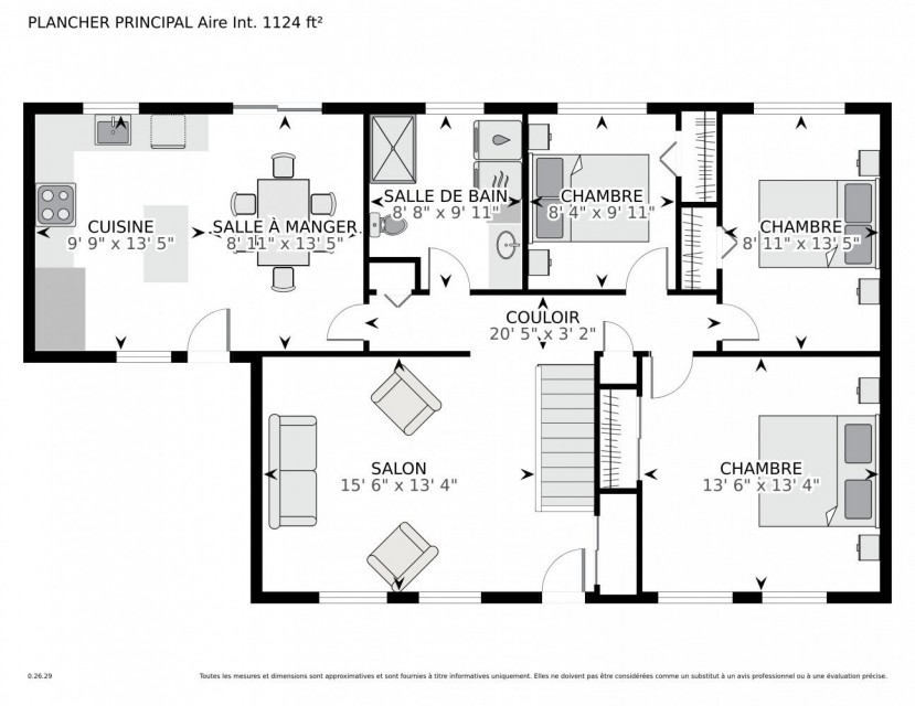
Description des pièces
Pièces: 11
Chambres à coucher: 4
Salles de bain + Salles d'eau: 2 + 0
| Pièce | Dimensions | Étage | Revêtement de sol | Info |
|---|---|---|---|---|
| Cuisine | 9.8x13.3 P | 1er niveau/RDC | Céramique | |
| Salle à manger | 8.7x13.3 P | 1er niveau/RDC | Céramique | |
| Chambre à coucher principale | 12.10x12.11 P | 1er niveau/RDC | Parqueterie | |
| Chambre à coucher | 8.0x9.10 P | 1er niveau/RDC | Parqueterie | |
| Chambre à coucher | 13.3x8.5 P | 1er niveau/RDC | Parqueterie | |
| Salle de bains | 9.10x8.3 P | 1er niveau/RDC | Céramique | |
| Salon | 13.0x11.10 P | 1er niveau/RDC | Parqueterie | |
| Bureau à domicile | 15.5x12.4 P | Sous-sol | Céramique | |
| Chambre à coucher | 12.8x8.11 P | Sous-sol | Céramique | |
| Atelier | 11.2x12.5 P | Sous-sol | Béton | |
| Salle familiale | 25.7x14.6 P | Sous-sol | Couvre-sol souple |
Inclusions
Luminaires, stores, rideaux, pôles, réfrigérateur, micro-ondes, cuisinière, lave-vaisselle, laveuse, sécheuse, piscine hors-terre, accessoires de piscine, deux gazebos (dont un à réparer).
Exclusions
Non disponible pour cette inscription.
Immobilier commercial
Non disponible pour cette inscription.
Unités
Non disponible pour cette inscription.
Opportunités de revenus
Non disponible pour cette inscription.
Rénovations
Non disponible pour cette inscription.
Pièce(s) et Espace(s) additionnel(s) - Intergénération
Non disponible pour cette inscription.
Ēvaluation, taxes et dépenses
| Expenditure/Type | Montant | Fréquence | Année |
|---|---|---|---|
| Évaluation de bâtiment | $ 347,000.00 | 2026 | |
| Évaluation de terrain | $ 292,000.00 | 2026 | |
| Évaluation totale | $ 639,000.00 | 2026 | |
| Coût d'énergie | $ 1,738.00 | Annuel | |
| Taxes municipales | $ 3,579.00 | Annuel | 2026 |
| Taxes scolaires | $ 386.00 | Annuel | 2025 |